Higher Roch
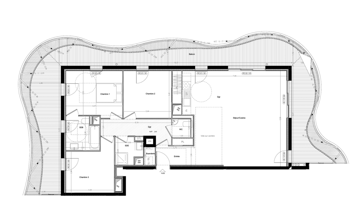
Culminant à 50 mètres du sol, Higher Roch déploie une succession de terrasses suspendues posées sur un socle commun dédié aux boutiques et commerces. Les niveaux supérieurs aux formes sensuelles et sinueuses proposent une collection d’appartements composés d’une, deux, trois ou quatre pièces.
À partir de
230 000€
Appartements
T1 au T4
Livraison
2ème semestre 2020
Architectes
BRENAC & GONZALEZ
Les appartements









